

Old Building Reused - Hollow Village
Duration : 1th April - 18th June ..Key words : Regeneration Fiexbilitu Social Discussion Re-purposed
Hollow Village of Songzhuang
Site Analysis

Songzhuang village is located in the southwest of Songyang County, Lishui City,
Zhejiang Province. It has beautiful scenery and suitable climate. With a population of
581, the village takes the planting of bamboo forest as the leading industry and takes
into account the planting of various Alpine fruits and vegetables,It is located on the
Songgu plain, the largest mountain basin in southern Zhejiang, and on the Bank of
Songyin River, a tributary of Oujiang River.
简介你的项目和产品,或者展示你的品牌文化。夏天的飞鸟,飞到我的窗前唱歌,又飞去了。秋天的黄叶,它们没有什么可唱,只叹息一声,飞落在那里。
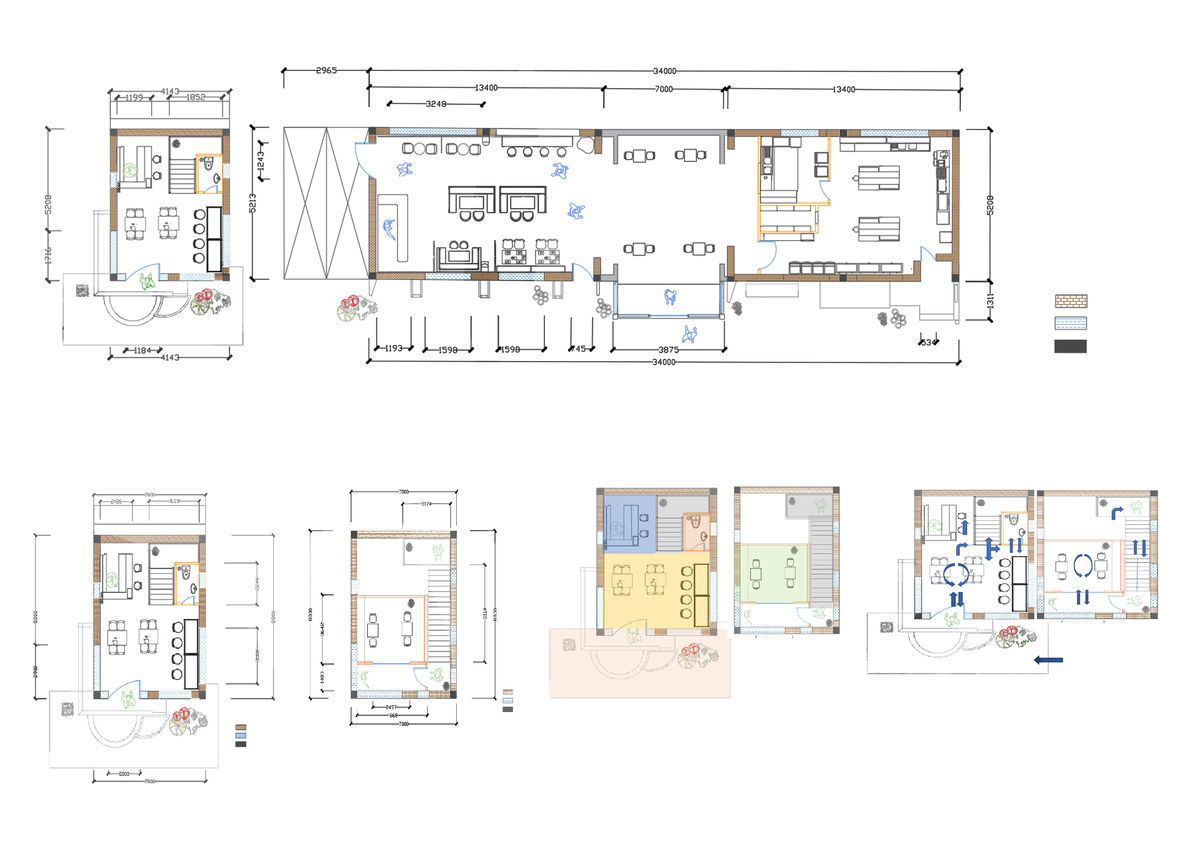
EXPLOSION DIAGRAM OF Dining area
Food and beverage is a very important part in a rural reconstructionproject, which can show local characteristic food, understand local
folk customs and promote communication.

Food and beverage is a very important part in a rural reconstructionproject, which can show local characteristic food, understand local
folk customs and promote communication.

Section view
This drawing is a cross section. By cutting it,you can clearly see the interior furniture, the
surrounding environment, the internal structural
relations, the materials and so on

Rendering
The purpose of this area is to create anecological restaurant, which integrates
with the surrounding environment
and allows customers to have a better
experience
上线了提供技术支持
George website
Website
https://static-assets.sxlcdn.com/images/fb_images/default-sxl.jpg
